$280,000
$299,999
6.7%For more information regarding the value of a property, please contact us for a free consultation.
SOLD DATE : 07/18/2022
Key Details
Sold Price $280,000
Property Type Vacant Land
Sub Type Lots/Land
Listing Status Sold
Purchase Type For Sale
MLS Listing ID P1-9226
Sold Date 07/18/22
Property Sub-Type Lots/Land
Property Description
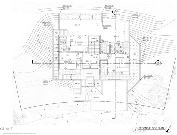
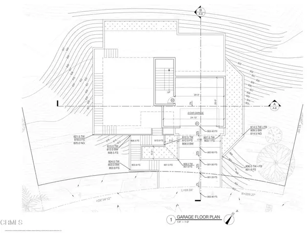
A phenomenal development opportunity to build your DREAM HOME with fully-approved plans and all permits Ready to Issue ''RTI'' for a split-level, open-concept, contemporary, three bedrooms, three bath, approx. 2,200 SqFt home + 500 SqFt attached, two-car garage. This beautiful lot spans over 10,000 SqFt and is readily accessible to the 2 and 134 freeways, moments from the studios. Minutes from the Chevy Chase Country Club in northeast Glendale's Chevy Chase Canyon. Walking distance to Chevy Chase Country Club. Only minutes away from Old Town Pasadena, the Rose Bowl, Americana, Downtown LA, and Burbank. Rare opportunity to own in this exclusive neighborhood. Located in the highly rated Glendale Unified School District!
Location
State CA
County Los Angeles
Direction Located between 2621 & 2631 E Chevy Chase Drive
Interior
Fireplace No
Exterior
View Y/N No
Others
Senior Community No
Acceptable Financing Cash
Listing Terms Cash
Read Less Info
Want to know what your home might be worth? Contact us for a FREE valuation!

Our team is ready to help you sell your home for the highest possible price ASAP

Bought with Mylene Le Bail Keller Williams Pacific Estate








